已售|希臘蘭亭十期
發表時間:2022年03月16日瀏覽量:
Pagkrati區是雅典律師、藝術工作者聚集的一個區,充滿文藝氣息。公寓周邊配套嫻熟,交通便利,除了公交車和有軌電車外,步行幾分鐘就有地鐵。周圍公園綠地環繞,道路規劃井然,自然環境好。距城市主干道較近,可直達雅典各區。在市中心的若干個區域里,這邊生活氣息更濃,推薦購買后做長租,好招租且收益穩定,也是Airbnb的理想選擇。
這個街區離憲法廣場(Syntagma Square)只有15分鐘的步行路程,不論是步行還是驅車到Pangrati區域都是非常方便的。在這里,你可以看到古代命運女神Tyche的神廟碎片,也可以看到雅典衛城、現代城市和遠海的迷人景色。

Pangrati沒有統一的風格——并不是所有的新古典主義建筑都是明信片樣式的,比如普拉卡(Plaka)。它的建筑風格更加多樣化,既有富麗堂皇的老別墅,也有20世紀中期的公寓樓,甚至還有一些新的、前沿的尖端建筑。

Pangrati有一個角落叫Proskopon廣場,這里讓人感覺更像巴黎而不是雅典。這里的氣氛比地中海更具大陸性;廣場上到處都是沿街的咖啡館,高大的樹木和高聳的公寓樓為廣場遮陰

Pangrati是雅典一個年輕而活躍的社區,這個區域放佛是不眠不休的,咖啡廳和酒吧整日整夜都擠滿了人。
此次我們推薦的希臘優質房產項目——蘭亭十期,就坐落于Pangrati區域,擁有著良好的地理優勢,項目位于雅典市中心核心區域衛城景區,周邊景點環繞,同時也是大學城交匯區域。是雅典的教育重地和發展重點區域。這也是我們推薦此項目的主要原因。

希臘蘭亭十期



項目室內效果圖





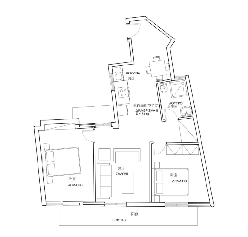
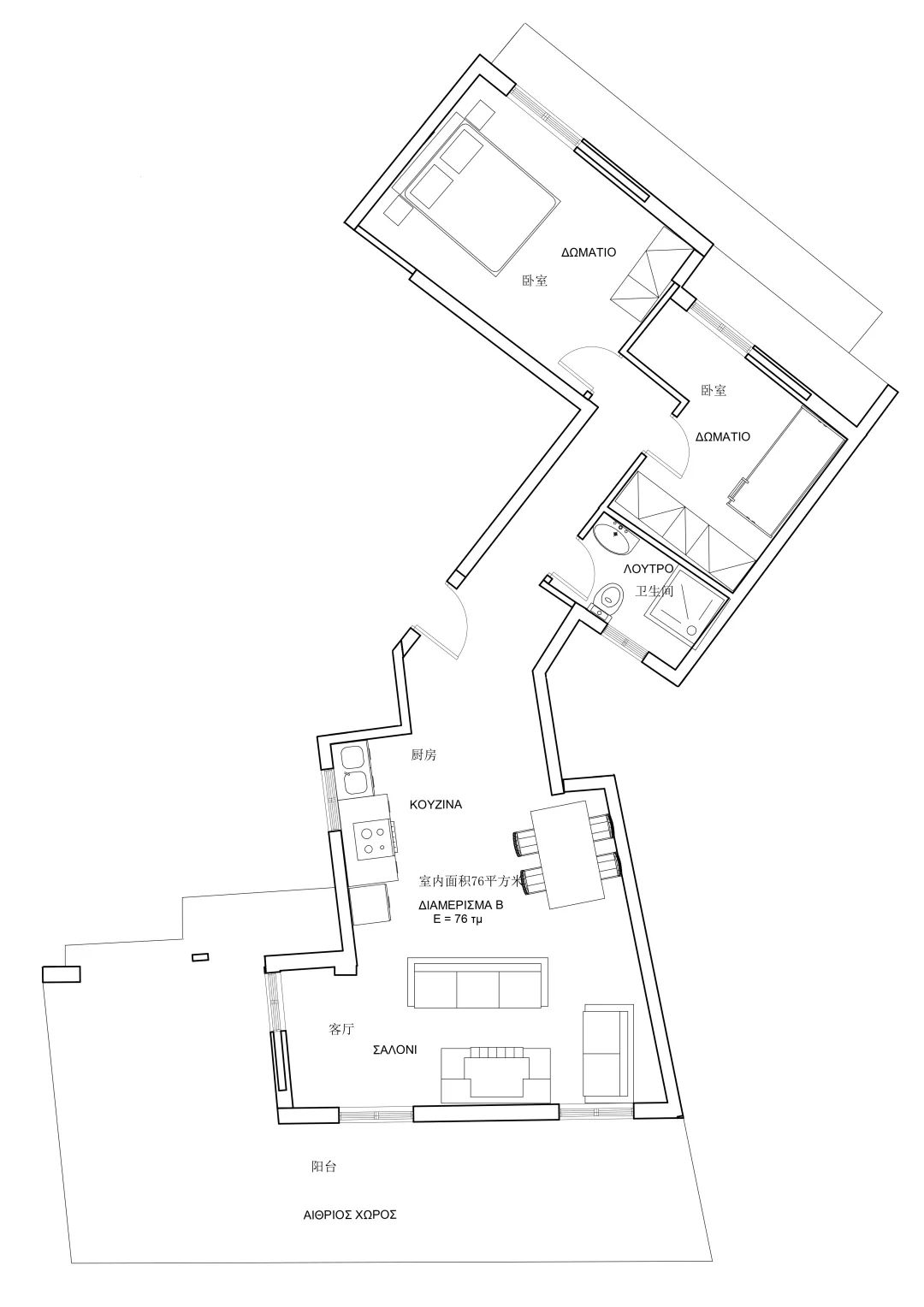
戶型圖


項目周邊


項目交通
項目位于雅典市中心景區商務區,也是Airbnb最為繁華的區域。區域東側為巴爾干半島第一所大學雅典大學以及希臘最大的移民局雅典移民局所在地,南側為Airbnb密集區,西側為五千年歷史文化悠久的衛城古文化遺址景區,北側則為希臘議會以及資本主義國家使館區。同時也是雅典名流政要的故鄉,是希臘外交部長,前希臘總統,船王以及奧斯卡音樂作曲得主的故鄉。
項目距離地鐵站750米,交通線路直達雅典國際機場和憲法廣場。公交227只需5站直達衛城景區,同時也是4號線開發的重要途徑站,交通便捷,生活便利。
項目周邊出租情況
Pagrati和Stadiou作為雅典市中心政治文化交匯樞紐,位于雅典市中心政治要塞總統府后面,背靠奢華的王宮花園和希臘議會,坐擁奧林匹克發源地奧林匹亞體育館,是雅典市中心的高端商業區廣場最多的區域,靠近希爾頓、皇冠等連鎖酒店和使館。經濟繁榮,交通發達,人流訪問量大,居住人群層次高。項目顯要的地理位置使得周邊安全防護較為嚴格。
希臘移民要求:
申請人要求:
1. 年滿18歲,無年齡上限要求,無學歷及語言要求;
2. 在希臘購買25萬歐元以上的房產;
3. 有至少一次入境希臘的記錄;
4. 無學歷、語言、背景、資金等方面的要求;
5. 無健康證明要求;
6. 隨行人員:全家三代:主申請人、其配偶、其子女(21周歲以下非獨立子女)、主申請人父母、配偶子女。
希臘投資移民優勢: